Vendita Attività commerciale Cecina

Attività commerciale, Cecina
MicCen

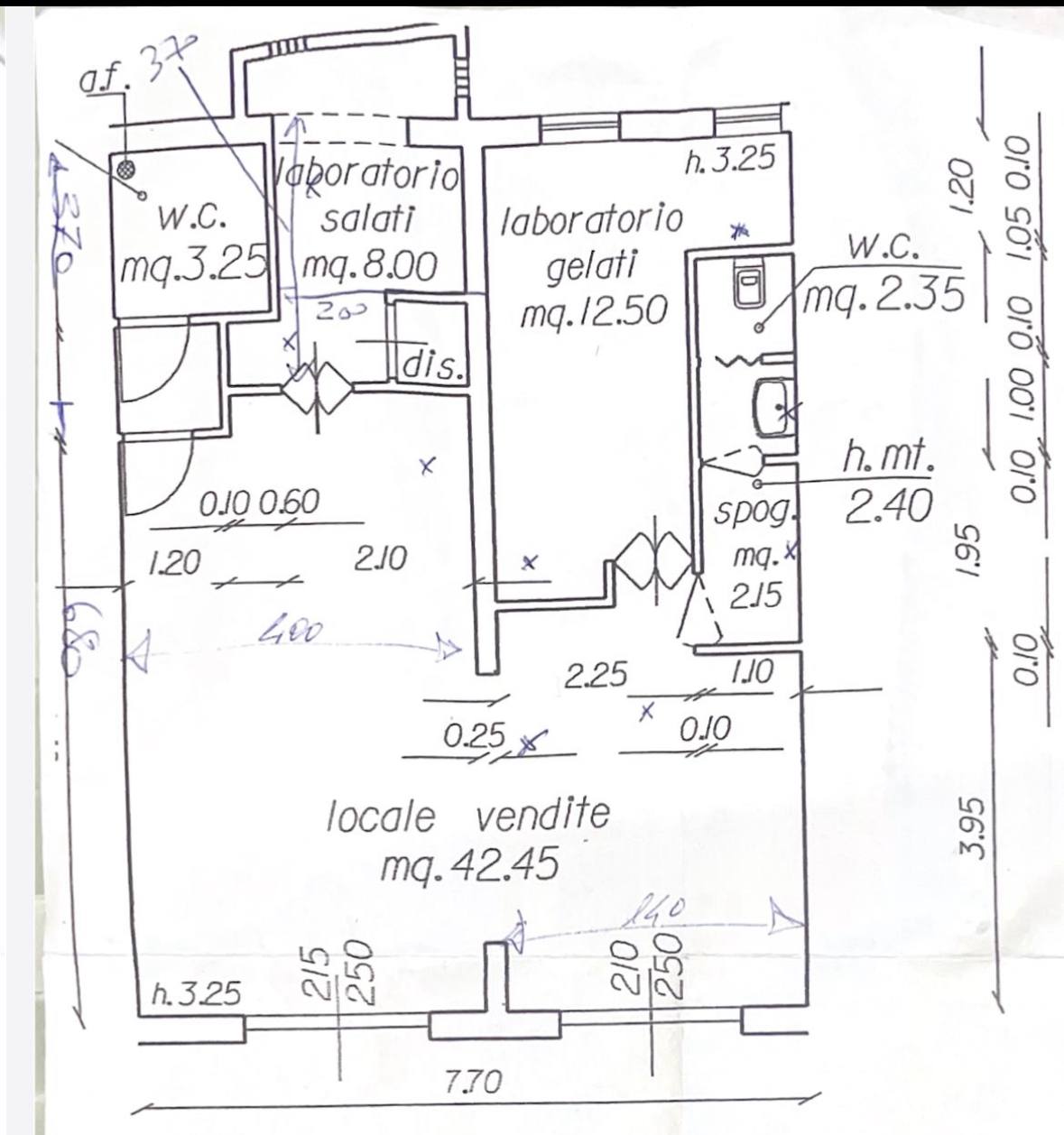
Cedesi attività commerciale avviata da oltre 20 anni in centro a Cecina Mare.Licenza completa per Bar, Gelateria, asporto e generi alimentari con possibilità di ampliarla a ristorazione.Esterno in uso con tavoli ed ombreggianti di oltre 30 Mq.Esclusivo

2 bagni.

Prezzo: € 75.000,00

 
 
 
Superficie: 70 mq
 
Classe energetica: G
 
Prezzo: € 75.000,00
 
 

Gallery

 
Torna alla ricerca
Richiedi informazioni